淮海设计奖”( HuaiHai Design Award)简称HDA,是一项面对青年设计师的室内设计大赛奖项,“淮海设计奖”致力于发掘新生设计力量及设计作品,由淮海家居网于2016年独家发起,旨在让徐州及淮海地区的青年设计精英得到设计界了解及关注,为自己发声,同时扩大青年设计师在地区乃至全国的知名度与影响力。
大赛发展至今,已发展成为涵盖家装设计、商业空间、线下实战等多个版块的综合性设计奖项,将构建全面的赛事体系,助力青年设计师成长。赛事流程分为大赛启动、作品征集、导师辅导、评委初选、年度总决赛、年度颁奖盛典。参赛作品可以分为实战赛、实景作品、效果图方案三种方式投稿参赛。
2023年,淮海设计奖将持续聚焦青年室内设计师, 以“追光”为年度主题,一如既往,以专业视角+大众视角,发现兼具美学与消费认可的好设计。以专业平台助推青年设计师成长。并促进同业间的交流和分享,不断推动专业水平,提高各界对室内设计的认知和认同。
01 征集目的 /Purpose
2023年度淮海设计奖正火热进行中,为了通过淮海设计奖的赛事热点,引起装企、设计工作室、品牌商、消费者多方的关注和探讨。大赛主办方甄选热销、有代表性的楼盘户型,进行指定户型设计方案的作品征集。通过参赛设计师天马行空的设计思路,为业主装修提供更多元化的参考和方向。让更多准客户,感受到楼盘与众不同的设计元素和更多可能性。
02 征集标的 /Target

万科吾山
项目规划
总建面:13.71万方
住宅规划:共23栋,475户;合院42户,叠墅275户,洋房158户
03 征集细则/By-laws
一、征集通道
参加方案征集的设计师首先需报名淮海设计奖参赛(点击这里立即报名),然后设计作品提交至大赛官方邮箱1413772445@qq.com
二、征集要求
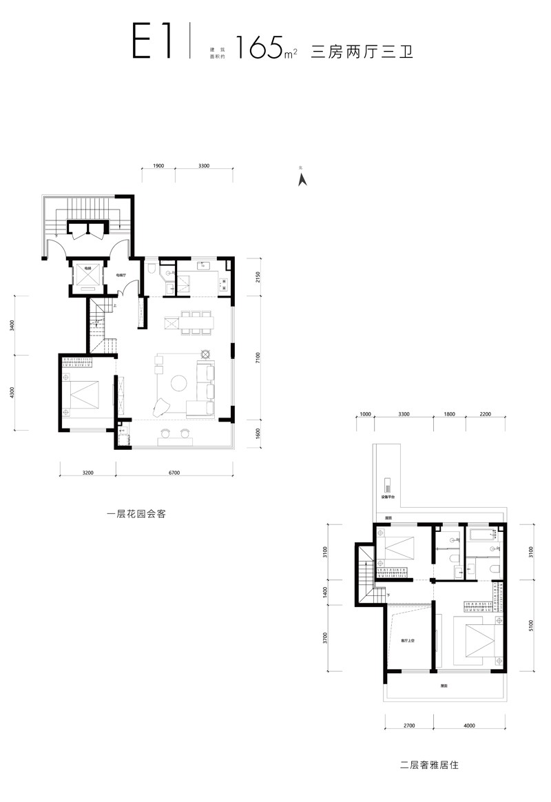
1. 征集户型 — 165㎡(观山上叠)

户型图
2.参赛对象:
装饰公司设计师、设计公司/设计院/事务所/工作室设计师、自由设计师。
3. 设计要求:
本次方案征集在主办方指定的户型上进行设计,风格不限,自由发挥。
4. 作品征集日期:
即日起至2023年10月31日截止。
5. 作品提交要求:
1. 要求平面布置图不少于2张。
2. 效果图不少于8张(客厅必选2张,卧室、餐厅、书房、客房、卫生间、阳台等自选);
3. 作品图片要求:JPG或PNG格式;色彩模式:RGB;分辨率不低于300dpi;尺寸不小于3000px* 2000px;单张文件大小不超过8M;只能包含单一影像,不接受多张照片拼接合成。
4. 参赛者须提交项目设计创意说明(300字以内),包括设计案例说明、设计思路解析以及作品亮点提炼等文字表述。
5. 个人简介,字数不少于300字,包含个人主要信息(毕业院校、从业年限、设计理念、擅长风格等)。
6. 个人形象照一张。竖版纯色背景,全身照。图片尺寸不小于2000px* 3000px。
整理好作品统一发送至官方邮箱:1413772445@qq.com (发送作品请备注吾山方案参赛)
04 支持政策/Support
官方指定户型设计参赛选手专享 (非指定户型效果图参赛不参与总决赛PK)
① 所有参赛作品均在上传到大赛平台,由专家评委初评,进行综合打分。入围TOP10的选手进入总决赛,现场接受专家评审、专业导师、媒体代表、业主、开发商的现场打分。最终评选出方案组前三名。
② 入围前三名的选手,则可以参与后期联合本楼盘策划的业主私享会、业主答谢会。面对面进行设计方案的交流、分析。
③ 获奖选手给予荣誉以及物质奖励(奖杯+证书、奖品、个人专题的推广包装等等)
说明:指定户型方案征集作品满30套以上,组委会单独策划一场总决赛作品PK,现场作品阐述,接受现场评委打分、点评。总决赛时间另行通知,详情关注淮海家居网官方平台。
05 参赛须知/Notice
1、本次方案征集任何时候不以任何名义、任何方式向参与设计师收取任何费用。
2、设计师提交作品必须为本人原创作品,具有完整的版权和使用权。一经发现剽窃抄袭行为,立即取消其参赛资格,由此引起的版权纠纷,由参赛者个人承担。
3、参与征集的设计师在赛事评选及参赛事宜上请听从赛事组委会的安排,按照大赛赛程安排提前规划好时间,参与赛事各个阶段。
4、本次作品征集归属淮海设计奖效果图方案的一种,和其他类型作品征集不冲突。
— 万科·吾山项目介绍 —






上一篇
返回目录 




